MÜHLBACH-QUARTIER ENDERSBACH - TOGETHER. ALIVE. DIVERSE.
Master's thesis | Luca Buscher| Hannes Gross | Hannes Geissler | Maren van den Eijkel | Maximilian Seimetz | 2nd semester | winter semester 2024/25
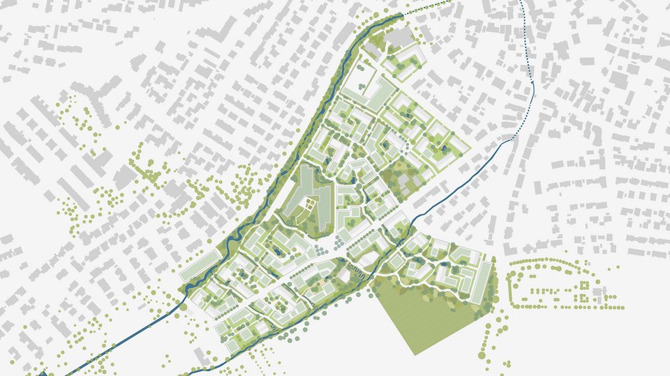
The design for the "Mühlbach-Quartier", located in the south of Endersbach, combines a high urban density with the local building culture and thus creates an attractive living and working environment. The innovative energy concept in conjunction with the progressive mobility concept creates a climate-adapted neighbourhood that prioritises NMIV and is strongly oriented towards the human scale. In addition, the wide range of housing types and communal uses, as well as the attractive open space design, promote socio-cultural exchange.
Student research project supervised by Professor Dr.-Ing. Gunther Laux, Dipl.-Ing. Michael Schröder, Dipl.-Ing. Olaf Hildebrandt, Dipl.-Ing. Malte Novak & Dipl.-Ing. Sandra Patzelt
![[Image: HFT Stuttgart] Perspektive](/fileadmin/Dateien/Architektur-Gestaltung/_processed_/5/c/csm_002_2025-master-stadtplanung-buscher-vandeneijkel-geissler-gross-seimetz-perspektive-1_a82baa096a.jpg)
![[Image: HFT Stuttgart] lageplan](/fileadmin/Dateien/Architektur-Gestaltung/_processed_/f/1/csm_001_2025-master-stadtplanung-buscher-vandeneijkel-geissler-gross-seimetz-lageplan_4c7a7f832e.jpg)
![[Image: HFT Stuttgart] Perspektive 2](/fileadmin/Dateien/Architektur-Gestaltung/_processed_/2/c/csm_003_2025-master-stadtplanung-buscher-vandeneijkel-geissler-gross-seimetz-perspektive-2_6f66f8e819.jpg)
![[Image: HFT Stuttgart] Schwarzplan](/fileadmin/Dateien/Architektur-Gestaltung/_processed_/c/1/csm_004_2025-master-stadtplanung-buscher-vandeneijkel-geissler-gross-seimetz-schwarzplan_7a1f82f1c5.jpg)
![[Image: HFT Stuttgart] ZOOM 1 Ausschnitt](/fileadmin/Dateien/Architektur-Gestaltung/_processed_/c/8/csm_005_2025-master-stadtplanung-buscher-vandeneijkel-geissler-gross-seimetz-zoom-1_e323479bc6.jpg)
![[Image: HFT Stuttgart] Piktogramm 2](/fileadmin/Dateien/Architektur-Gestaltung/_processed_/1/c/csm_006_2025-master-stadtplanung-buscher-vandeneijkel-geissler-gross-seimetz-pikto-2_9042f95407.jpg)
![[Image: HFT Stuttgart] Piktogramm 3](/fileadmin/Dateien/Architektur-Gestaltung/_processed_/2/6/csm_007_2025-master-stadtplanung-buscher-vandeneijkel-geissler-gross-seimetz-pikto-3_ca8e7cfe6c.jpg)
![[Image: HFT Stuttgart] Piktogramm 4](/fileadmin/Dateien/Architektur-Gestaltung/_processed_/1/9/csm_008_2025-master-stadtplanung-buscher-vandeneijkel-geissler-gross-seimetz-pikto-4_d6e70015cf.jpg)
![[Image: HFT Stuttgart] Detail Ausschnitt](/fileadmin/Dateien/Architektur-Gestaltung/_processed_/6/0/csm_009_2025-master-stadtplanung-buscher-vandeneijkel-geissler-gross-seimetz-detail_ece7e036ba.jpg)