Conversion of a former cutlery factory into a timber construction academy | 3rd semester | winter semester 2025/26
A former cutlery factory in the Black Forest was scrutinised in order to house a timber academy. The aim of this task was to gain a better understanding of wood as a material and its production process in prefabrication. The spatial spectrum of an academy also includes many areas of use: living, learning, teaching, working, community, eating, celebrating, etc. The emphasis was deliberately placed on a project simulation in the classic sense, thus playfully scratching the surface of the question of how an architect sees themselves as a directing authority in the course of a project.
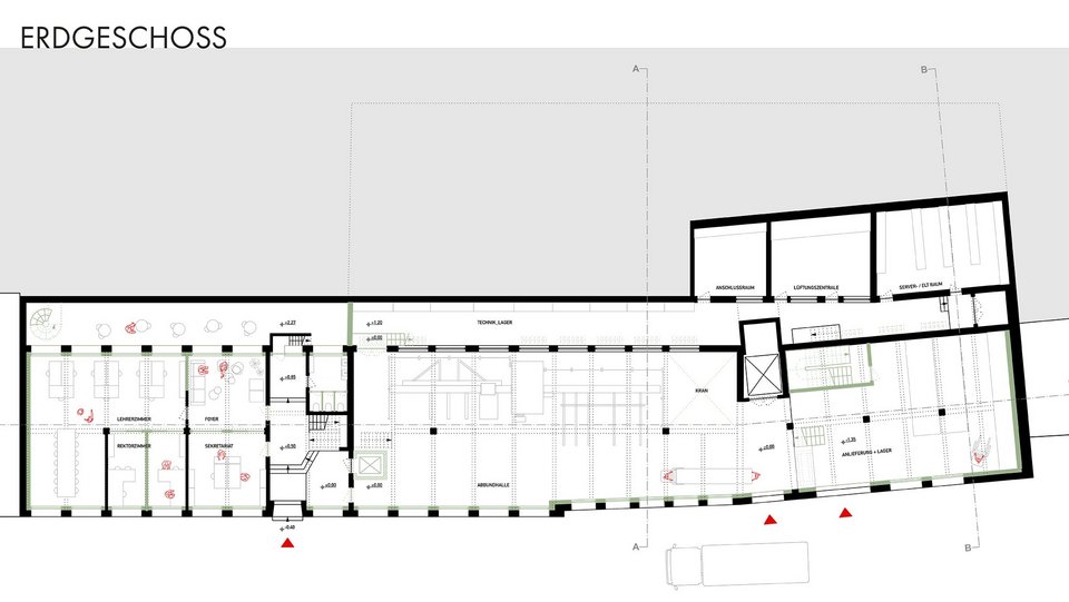
At the entrance to Altensteg stands an elongated factory building in reinforced concrete skeleton construction from 1925. After decades of vacancy, it passed into private ownership around 25 years ago. The complex task of building a timber construction academy was to be created on 2000 square metres. The topic was deliberately chosen so that the students could learn two things at once in this task: on the one hand, to accommodate a given room programme in an existing building, and on the other hand, to rely on "old houses" and their "transformability".
In addition to a site visit, the semester programme also included an excursion to a timber construction training centre.
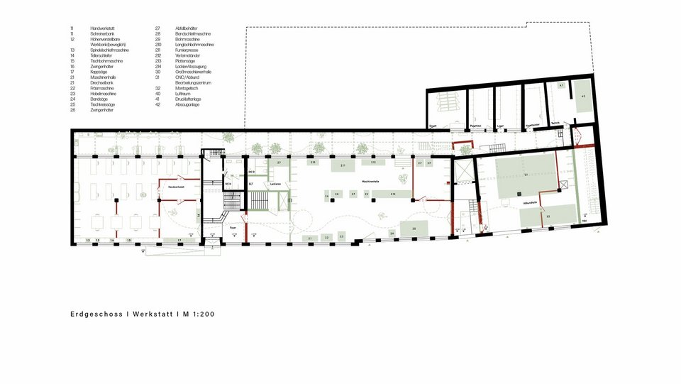
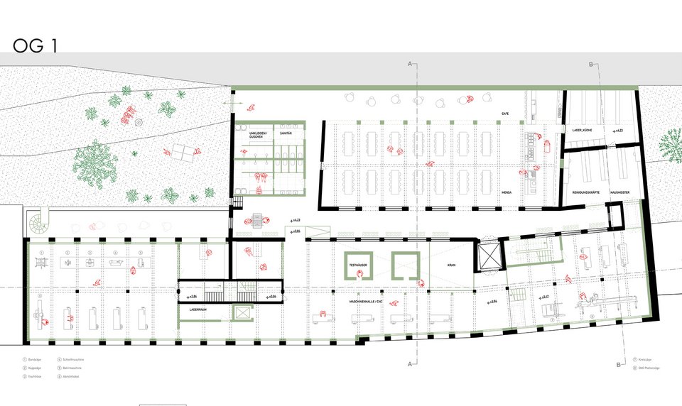
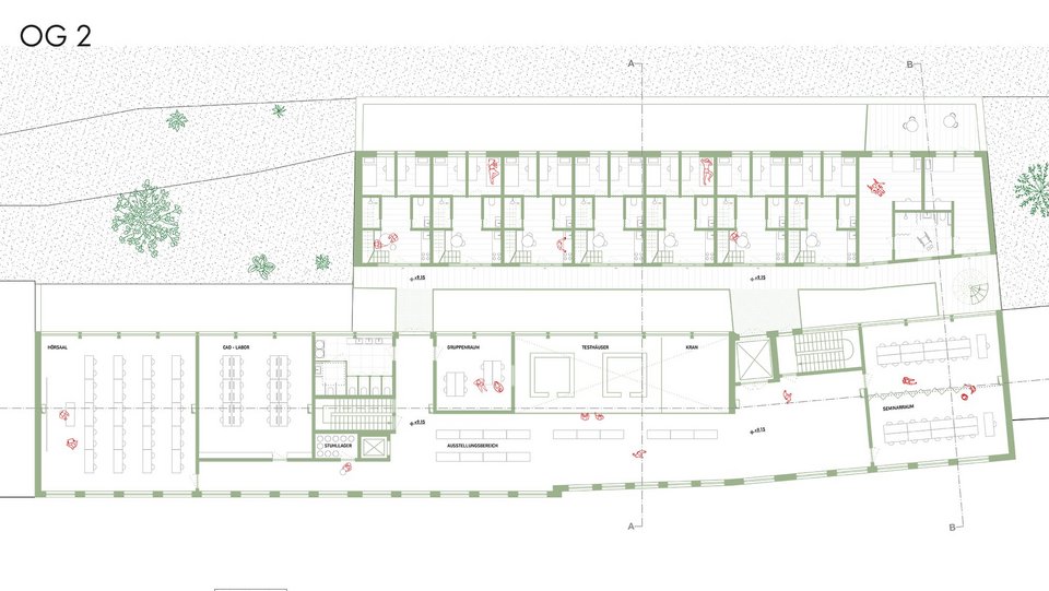
The given room programme presented the students with tricky decisions, especially for the large machine and joinery hall. How should the timber be delivered? Should it be delivered easily through the ground floor or spectacularly by hoisting crane to the top floor? The additional space required was solved by adding a storey to the existing building.
For the final submission, Thomas Gerstmeir asked for design documents as well as something for the ears: a podcast - a maximum of 15 minutes long. The students were able to experiment with the format.
Annika Nuss, Alicia Weiss, Katrin Wunder
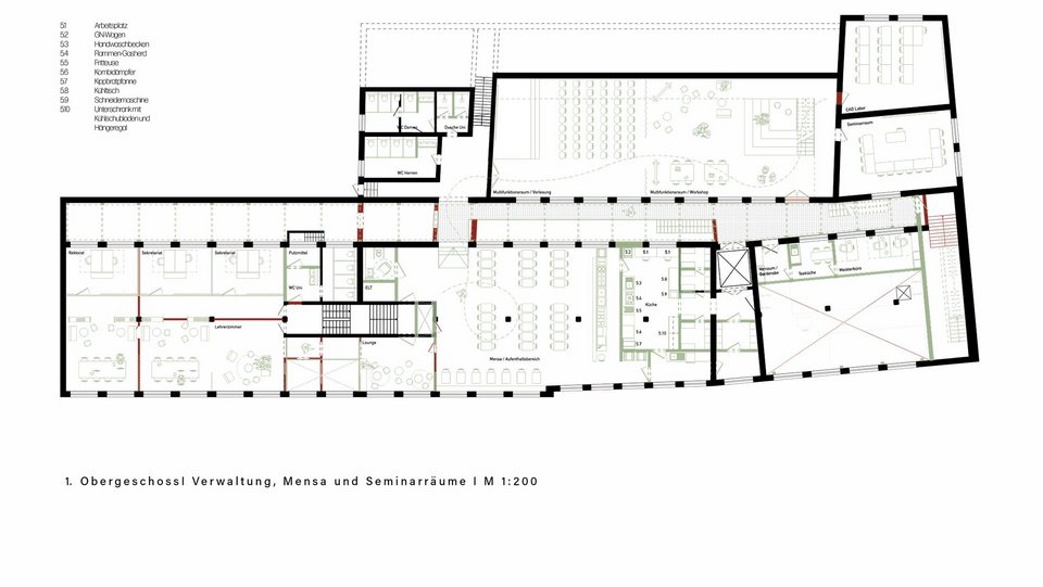
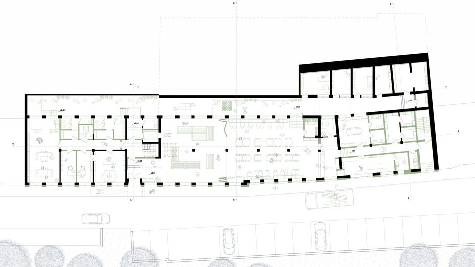
The former cutlery factory in Altensteig is being converted into a timber construction academy with minimal intervention. The existing building remains recognisable and is functionally restructured. A vertical structure organises the uses: The ground floor, as an open base, promotes exchange and encounters, while the upper floor provides quieter areas for teaching and retreat. The extension adds spacious workshops with optimal working conditions. Existing materials characterise the design and preserve the industrial character.
Emilia Evertz, Laura Nebe, Maren Dorothea Schnell
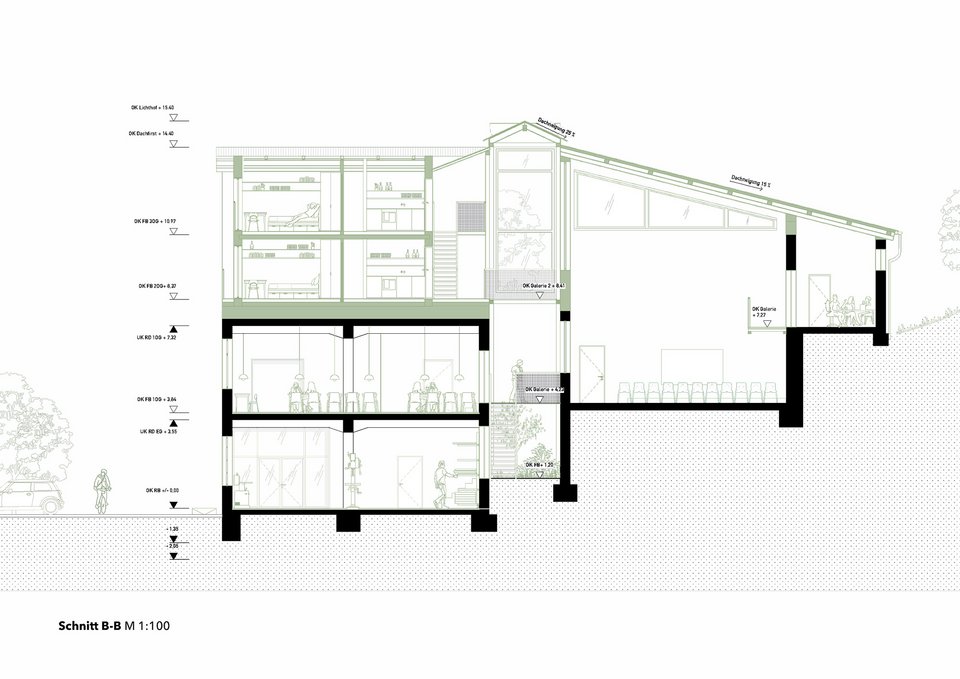
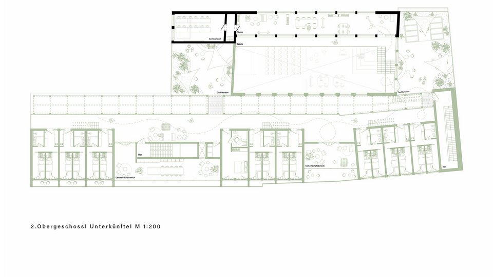
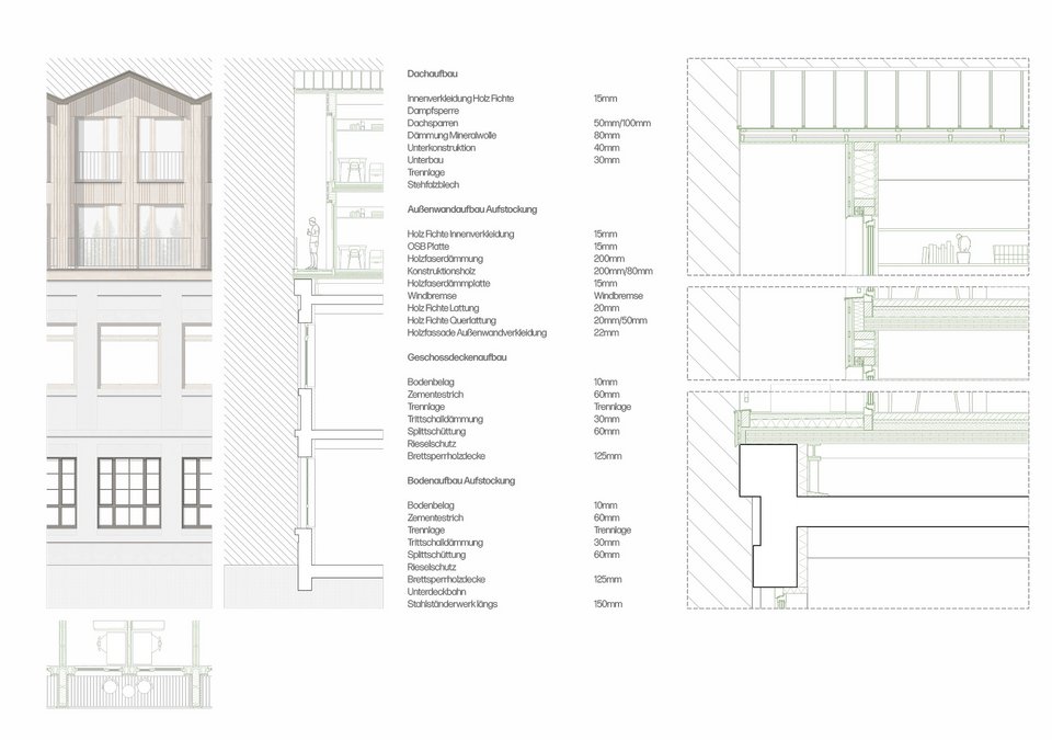
The former cutlery factory is being transformed into a timber construction academy whose architecture is characterised by light. Sawtooth roofs bring northern light into the workshops and seminar rooms, while a light gap acts as a spatial buffer zone between the working and living areas and at the same time creates a meeting place. In addition, maisonettes offer views of the landscape and the courtyard. A façade made of reused shuttering panels picks up on the industrial history and translates it into a contemporary architecture of further construction.
Sebastian Kindle, Dilara Türetken, Diane von Ludwiger, Svenja Warners
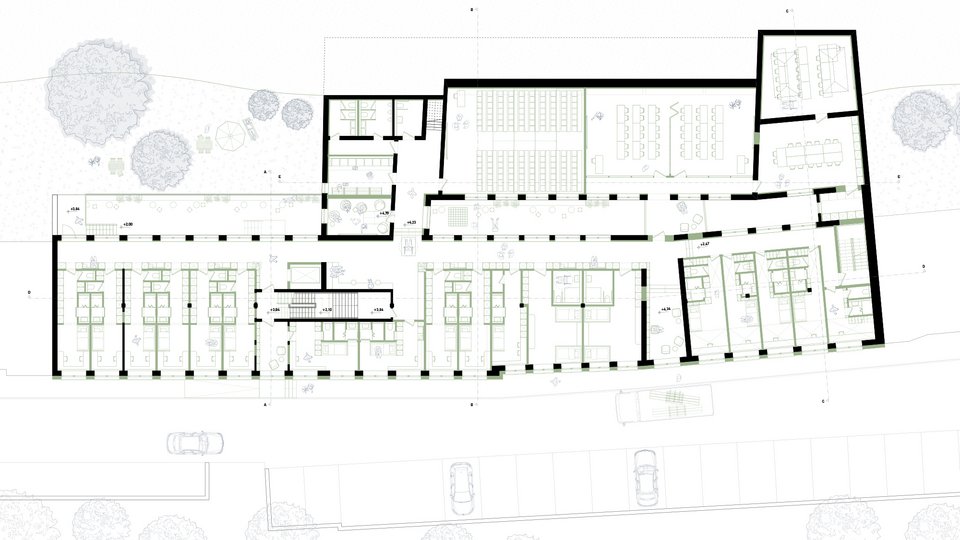
The project comprises the conversion of an old factory with an additional storey to create a training centre. The design emphasises a deliberate contrast to the existing building without overpowering it and pursues a transformation that conserves resources. The result is a place where communal living and craftsmanship knowledge continue to have a future-oriented impact.
![[Image: Laura Nebe] HFT](/fileadmin/Dateien/Architektur-Gestaltung/_processed_/2/a/csm_Laura_Nebe_3928550872.png)
![[Image: Emilia Evertz, Laura Nebe, Maren Schnell] Piktogramme](/fileadmin/Dateien/Architektur-Gestaltung/_processed_/f/7/csm_6_2026-master-innenarchitektur-evertz-schnell-nebe-pictos_8560610565.jpg)
![[Image: Emilia Evertz, Laura Nebe, Maren Schnell] Skizzen](/fileadmin/Dateien/Architektur-Gestaltung/_processed_/a/f/csm_12_2026-master-innenarchitektur-evertz-schnell-nebe-skizzen_4036f00253.jpg)
![[Image: Emilia Evertz, Laura Nebe, Maren Schnell] Visualisierungen](/fileadmin/Dateien/Architektur-Gestaltung/_processed_/4/e/csm_13_2026-master-innenarchitektur-evertz-schnell-nebe-visus_d0ba8b0b6e.jpg)
![[Image: Emilia Evertz, Laura Nebe, Maren Schnell] Modellfotos](/fileadmin/Dateien/Architektur-Gestaltung/_processed_/0/a/csm_14_2026-master-innenarchitektur-evertz-schnell-nebe-modell_471b154229.jpg)